Corredor de Bienes Raíces autorizado | Licencia No. INVUR-UCBR-PN-No. 0101-2025

San Juan del Sur

Código: CA2179 En Venta
$530,000
Precio de Venta
Rivas, San Juan del Sur
Terreno: 699.60
Área: 300

Descripción

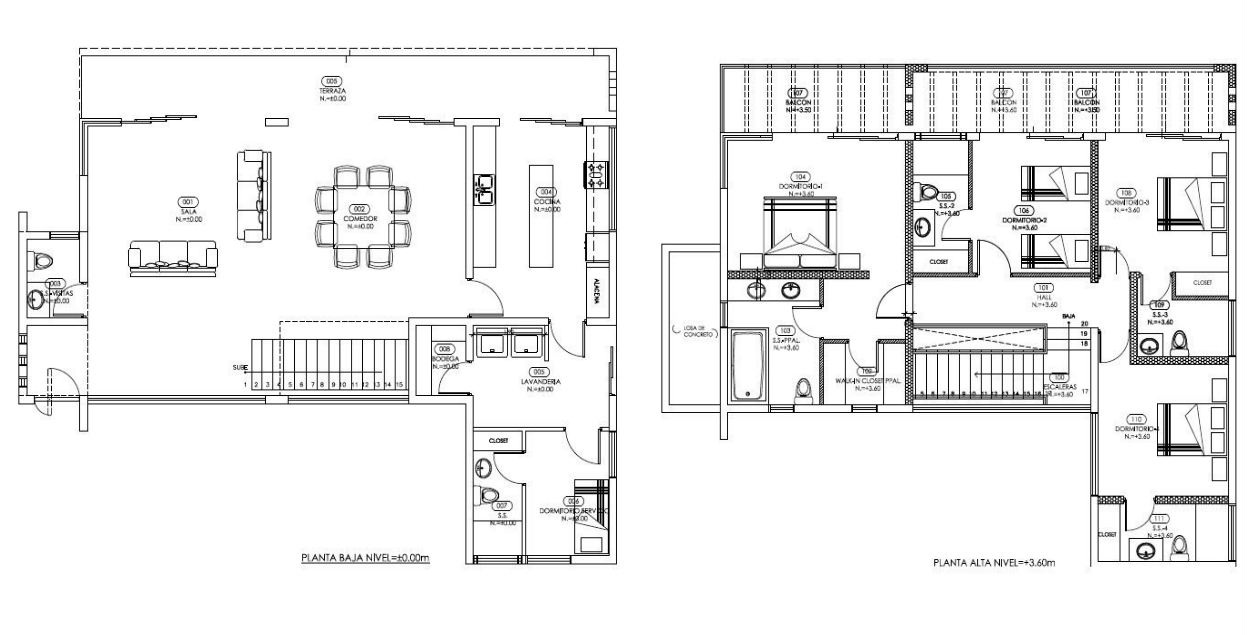
Ubicada en las lomas de San Juan del Sur, casa con espectacular vista y diseño moderno. Con 300 Mts.2 de construcción en un lote de 699.60 Vrs.2 de terreno; con las siguientes especificaciones: Planta alta: 4 habitaciones amplias (habitación principal con walking closet, balcón, todas las habitaciones poseen baño privado). Planta baja: lobby, 1/2 baño de visita, sala de estar, cocina amplia con desayunador y top de granito, comedor, terraza techada amplia, área de servicio completa, área de lavado; jardín perimetral, piscina, garaje, aire acondicionado, abanicos de techo.

🛏️
Habitaciones
4
🚿
Baños
4
🏢
Pisos
2
Garaje
🏊
Piscina
🛋️
Sala
🍽️
Comedor
🌴
Terraza
❄️
Aire Acondicionado
📐
Terreno
699.60

Me interesa esta propiedad

Propiedades Sugeridas

Venta de casa en calle hacia Veracruz
Venta de casa en calle hacia Veracruz
Código: CA2897
Venta: $215,000
Casa con seguridad 24 horas
Casa con seguridad 24 horas
Código: CA1850
Venta: $295,000
Casa Amplia
Casa Amplia
Código: CA1811
Venta: $270,000
Patrocinador