Corredor de Bienes Raíces autorizado | Licencia No. INVUR-UCBR-PN-No. 0101-2025

Terreno En Carretera Sur

Código: TU1159 En Venta
$20,000
Precio de Venta
Managua, Carretera Sur
Terreno: 3000
Área: 0

Descripción

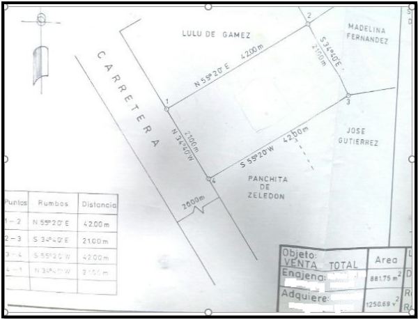
Terreno de 3,000 vrs ideal para negocio o casa de habitación, ubicado a la altura del km 27 de la carretera sur, con un frente a la carretera de 21 mts, con excelente clima y una pequeña bodega.

🛏️
Habitaciones
0
🚿
Baños
0
🏢
Pisos
0
Garaje
No
Piscina
No
Sala
No
Comedor
No
Terraza
No
Aire Acondicionado
No
📐
Terreno
3000

Me interesa esta propiedad

Propiedades Sugeridas

Centro America
Centro America
Código: TU1046
Venta: $109,865
Propiedad Venta / Crucero
Propiedad Venta / Crucero
Código: TU1181
Venta: $200,000
Terreno Para Inversion
Terreno Para Inversion
Código: TU1154
Venta: $95
Patrocinador